WESTYE EGEBERGSGATE

Subsequently, all things must change. That’s how we felt about this restorative transformation project.

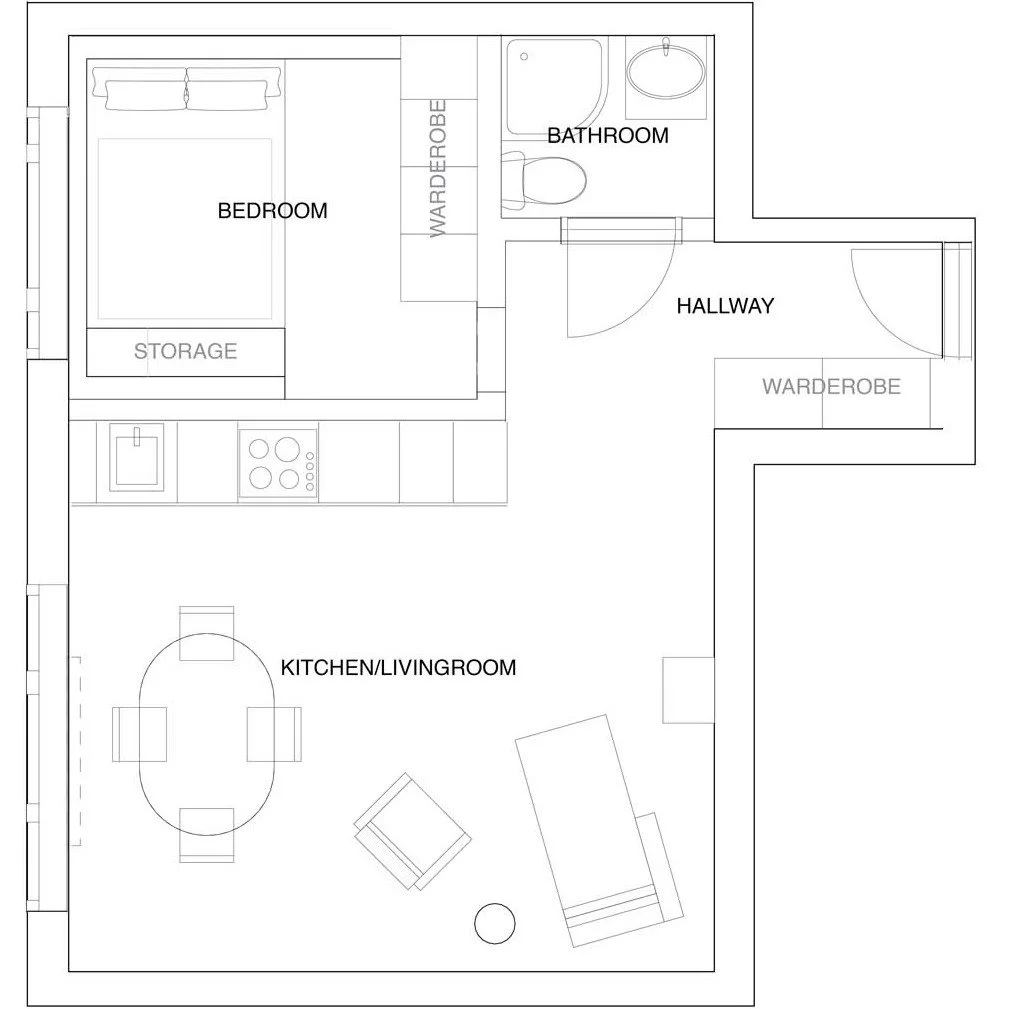
The apartment’s inherent qualities are remarkable: uninterrupted views across the city, no facing facades, and direct sunlight throughout the day. The reconfiguration focused on unlocking this potential. A new layout introduces a separate bedroom, requiring the relocation and complete redesign of the kitchen.

Custom storage solutions were integral to the project, ensuring efficiency without compromising spatial quality. Every detail was carefully considered and researched to align with the historic character of the iconic, Grade II listed 1930s building.

Year of completion: 2023
Location: oslo, norway

Previous
Previous

toftes gate

Next
Next

farmhouse